Sold
Share Listing
Save Listing
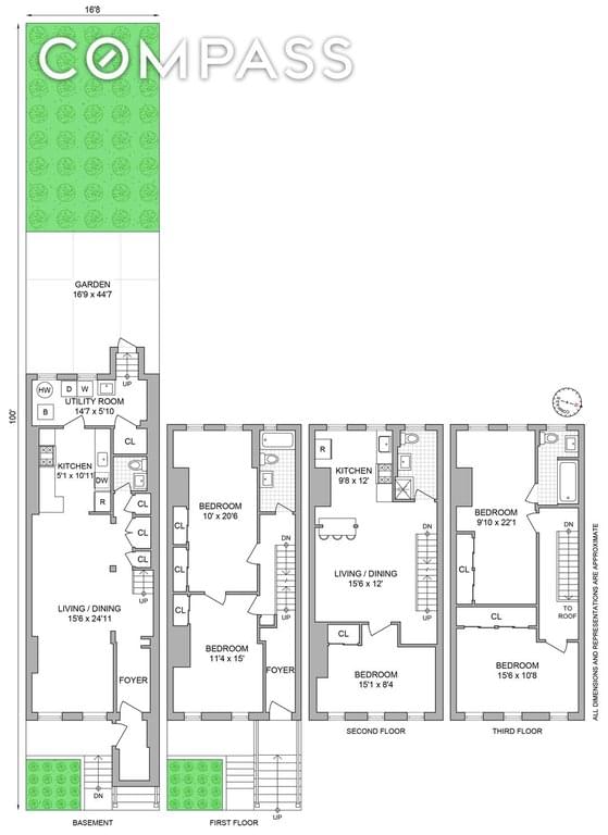
96 Vanderbilt Avenue
Townhouse in Fort Greene •  building info
5bd • 3.5ba • 2,083ft² $814 per ft²
Sold price

$1,695,000

Key Details
Days on market
59
Last price change
loading...
Estimated payment
$9,744/mo
Taxes
$351/mo
Maintenance
N/A
Description
DOUBLE DUPLEX TOWNHOUSE IN CLINTON HILL/ FORT GREENE: This unique semi-attached house is built as a double duplex and has been in the same family for many decades. Both units have private entrances. The upper duplex consists of three bedrooms, two full baths and ample living space with open kitchen layout. The lower duplex consists of two bedrooms, one full and one half bath with open layout and ample living space. The lower duplex has a mud room and extension with laundry and access to the backyard. Hardwood floors throughout. Bring your designer to make this house your new home! Brisk walk to subway, buses on Vanderbilt and Myrtle Avenues. The ferry stop is a quick walk to Flushing Ave...Close to the trendiest dining options in Brooklyn. Pratt University and it's sculpture garden and the city's most amazing historically rich architecture of Clinton Hill and Fort Greene and the Brooklyn Navy Yard neighborhoods. Wegmans Supermarket is one of the largest supermarkets and just a quick walk. Fort Greene Park, The Barclays Center and Brooklyn Academy of Music are close options for leisure and culture. Come feel the vibe!

Hide full description

Important Stuff
Washer/Dryer in unit
Cats and Dogs allowed
Home features
Hardwood floors
View

Garden

Building amenities
Services and facilities
Fios Available
Shared outdoor space
Garden
Building info

History
What it'll cost
Purchase price
$1,695,000
Asking Price: $1,695,000
Term
30 Years
Down Payment
$169,000 (10%)
Min: 10% (169,000)
Rate
6.25 %
Mortgage Amount
$1,525,500
Mortgage Payment
$9,393
Taxes
$351
Estimated closing cost
$60,000
Total monthly cost $9,744
Listing Courtesy of Compass

IDX information is provided exclusively for consumers' personal, noncommercial use and that it may not be used for any purpose other than to identify prospective properties consumers may be interested in purchasing.

This information is not verified for authenticity or accuracy and is not guaranteed and may not reflect all real estate activity in the market. ©2025 REBNY listing service, Inc all rights reserved.

RLS IDX Data display by Yoreevo.