Buy with Yoreevo
$912,660
List Price: $928,000
Share Listing
Save Listing
8516 253rd Street
House in Floral Park •  building info
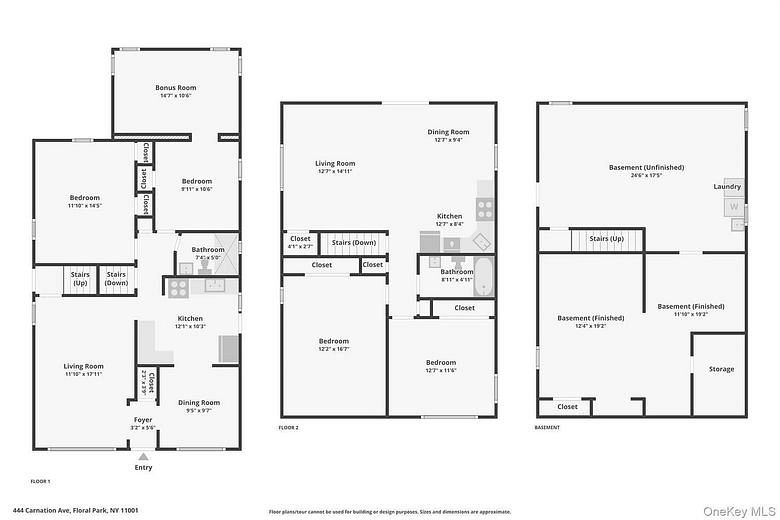
3bd • 3ba • 1,150ft² $807 per ft²
Buy with Yoreevo

$912,660

List Price

$928,000

Key Details
Days on market
3
Last price change
loading...
Estimated payment
$5,606/mo
Taxes
$464/mo
Maintenance
N/A
Description
Welcome to 85-16 253rd Street, a standout single-family residence nestled in the heart of Bellerose—one of Queens’ most sought-after and tightly held neighborhoods. This is a home that immediately resonates with warmth, character, and pride of ownership, offering a rare opportunity to secure a truly move-in-ready property in a location known for long-term value and community appeal. Situated on a quiet, tree-lined residential block just a few short blocks from Hillside Avenue, the home delivers the ideal balance of suburban calm and urban accessibility. Enjoy effortless access to public transportation, major roadways, supermarkets, local shops, dining options, and nearby places of worship. Everything you need is close at hand, yet the setting remains peaceful, private, and distinctly residential. From the moment you arrive, the home’s curb appeal sets the tone. The detached garage, charming exterior, and well-maintained grounds create a strong first impression. Inside, the home has been freshly painted throughout, with beautifully finished floors that reflect natural light and elevate the overall feel. The layout is both functional and inviting—designed for real living, entertaining, and long-term comfort. The home features three generously sized bedrooms and three full bathrooms, an exceptional configuration for a single-family home in this area. The recently renovated bathrooms showcase clean, modern finishes while maintaining a timeless look that complements the home’s character. Every space feels intentional, polished, and ready for immediate enjoyment. At the heart of the home is a cozy fireplace, delivering the perfect backdrop for relaxing evenings, holiday gatherings, and memorable moments. This classic feature reinforces the home’s cape-style charm and creates a sense of comfort that is increasingly hard to find. The sunroom adds an extra layer of versatility—flooded with natural light and ideal as a home office, reading lounge, play area, or serene retreat. Step outside to the beautifully arranged backyard garden, a private outdoor sanctuary perfect for entertaining, unwinding, or enjoying warm-weather living. Combined with the detached garage, this property checks every box. Turnkey, well-located, and full of character, 85-16 253rd Street is more than a house—it is a place to build memories and call home. Opportunities like this in Bellerose are rare. Schedule your private showing today and experience it for yourself.

Hide full description

Home features
Dishwasher
Fireplace
Hardwood floors
Building amenities
Services and facilities
Parking

Garage

Building info

History
What it'll cost
Purchase price
$928,000
Asking Price: $928,000
Term
30 Years
Down Payment
$92,000 (10%)
Min: 10% (92,000)
Rate
6.25 %
Mortgage Amount
$835,200
Mortgage Payment
$5,142
Taxes
$464
Estimated Yoreevo rebate
$15,340
Estimated closing cost
$27,000
Total monthly cost $5,606
Buy your dream home with us and get an estimated $15,340 rebate.
Rebates vary by sale price, market and are subject
to a minimum commission.
Listing Courtesy of HomeSmart Premier Living Rlty

Information ©2025, OneKey MLS. All rights reserved. The source of the displayed data is either the property owner or public record provided by non-governmental third parties. It is believed to be reliable but not guaranteed.