Sold
Share Listing
Save Listing
Van Ranst Place
House in Mamaroneck •  building info
studio
Sold price

$1,300,000

Description
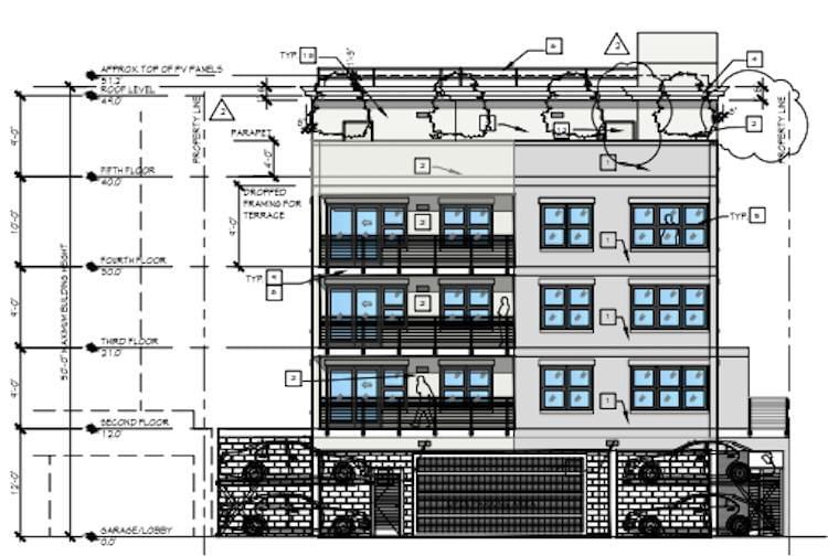
Link NY Realty is proud to present a fully approved development site in the heart of the highly sought- after Village of Mamaroneck, directly across the street from the Mamaroneck train station. This shovel-ready site offers plans for 10 free-market residential units, including: 4 two-bedroom units , 6 one-bedroom units. All approvals are in place, allowing immediate commencement of construction. 572 Van Ranst Place is nestled in one of Westchester's most desirable neighborhoods, offering the perfect blend of urban convenience and suburban charm. Directly across from Columbus Park, Just two blocks from the Mamaroneck Metro-North station, Walkable to shops, restaurants, and essential services Located in a vibrant, transit- oriented area with strong rental demand Surrounded by tree-lined streets, community spaces, and recreational amenities.

Hide full description

Building info

Listing Courtesy of Link NY Realty