Buy with Yoreevo
$1,560,210
List Price: $1,588,000
Share Listing
Save Listing
526 Park Avenue
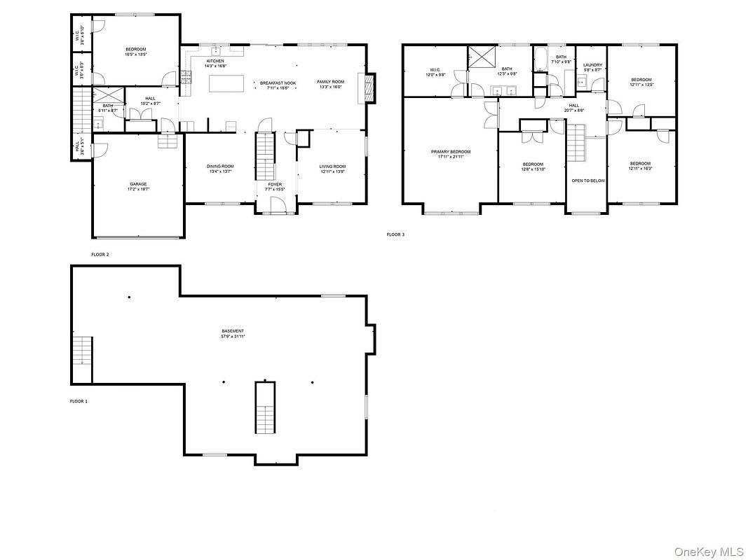
House in North Bellmore •  building info
5bd • 4.5ba • 3,600ft² $441 per ft²
Buy with Yoreevo

$1,560,210

List Price

$1,588,000

Key Details
Days on market
147
Last price change
loading...
Estimated payment
$8,569/mo
Taxes
N/A
Maintenance
N/A
Description
THIS BEAUTIFUL 3600SQFT 5 BEDROOM COLONIAL IS BUILT WITH SO MUCH ATTENTION TO DETAIL AND SO MANY EXTRAS ALREADY ADDED IN. THIS BUILDER OFFERS A PRODUCT THAT IS SECOND TO NONE AND BUILT LIKE THEY ARE GONNA LIVE IN IT. WITH A TREMENDOUS AMOUNT TO OFFER IT IS ADVISABLE TO LOOK AT A MODEL THAT WILL BETTER EXPLAIN ALL THATS INCLUDED. OPEN FLOOR PLAN WITH AN OVERSIZED PROPERTY AND A TWO CAR GARAGE IN THE MERRICK SCHOOL DISTRICT WITH GREAT PROXIMITY TO ALL. PLANS AND SPEC SHEETS AVAILABLE TO VIEW.

Hide full description

Home features
Dishwasher
Fireplace
Hardwood floors
Building amenities
Services and facilities
Parking

Garage

Building info

History
What it'll cost
Purchase price
$1,588,000
Asking Price: $1,588,000
Term
30 Years
Down Payment
$158,000 (10%)
Min: 10% (158,000)
Rate
6.0 %
Mortgage Amount
$1,429,200
Mortgage Payment
$8,569
Taxes
$0
Estimated Yoreevo rebate
$27,790
Estimated closing cost
$57,000
Total monthly cost $8,569
Buy your dream home with us and get an estimated $27,790 rebate.
Rebates vary by sale price, market and are subject
to a minimum commission.
Listing Courtesy of John Savoretti Realty

Information ©2026, OneKey MLS. All rights reserved. The source of the displayed data is either the property owner or public record provided by non-governmental third parties. It is believed to be reliable but not guaranteed.