In Contract
Share Listing
Save Listing
East 86th Street
Coop in Yorkville •  building info
1bd • 1ba
List Price

$499,000

Description
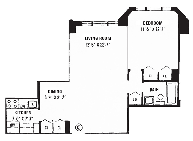
Unusually grand, charming and bright one bedroom home in an luxury full-service building. Southern exposure ensures direct sunlight through the oversized windows in both the living room and bedroom. In addition to the expansive 23-foot living room, there is a sizable dining alcove (currently used as a home office) directly off of the kitchen. Spacious is how this apartment feels, but look at the price! Plus, heating AND cooling are included in the VERY LOW maintenance (you pay for the electric fan). This building offers concierge service, laundry, a fitness room, an in-house dry cleaner and lobby access to the garage next door. The neighborhood highlights include Carl Schurz Park, Gracie Mansion, East River Promenade and the Asphalt Green recreational center. This end of 86th Street is quiet as can be, but transportation couldn't be easier. Walk or take the cross-town bus the four blocks to the 4,5 and 6 trains on 86th Street or all the way across town!

Hide full description

Building info

Listing Courtesy of BHSR - Brown Harris Stevens REBNY