Buy with Yoreevo
$546,000
List Price: $550,000
Share Listing
Save Listing
34 Kings Ferry Road
House in Montrose •  building info
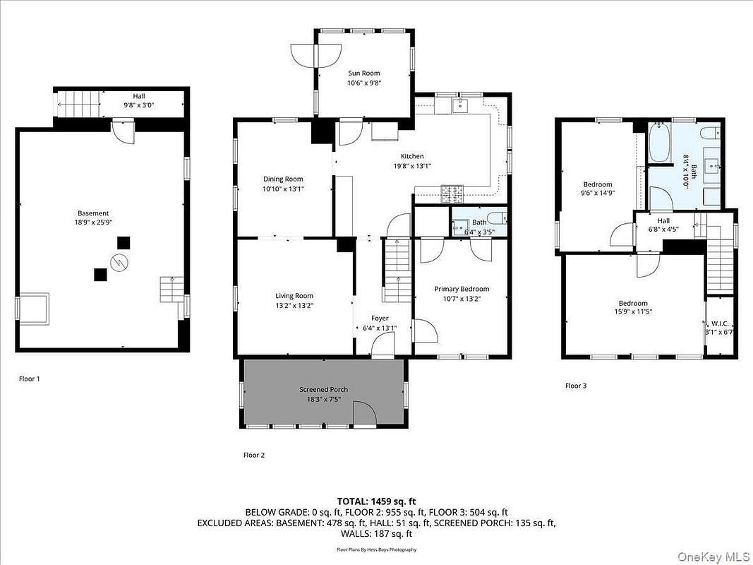
3bd • 1.5ba • 1,648ft² $334 per ft²
Buy with Yoreevo

$546,000

List Price

$550,000

Key Details
Days on market
49
Last price change
loading...
Estimated payment
$3,808/mo
Taxes
$760/mo
Maintenance
N/A
Description
Welcome to 34 Kings Ferry Road, an elegantly updated home nestled in the heart of Montrose, NY. This beautifully renovated residence offers a harmonious blend of modern amenities and classic charm, providing a perfect sanctuary for contemporary living. Spanning 1,648 square feet, this home features three generously sized bedrooms and 1.5 exquisite bathrooms. The grand foyer welcomes you into a space where sophistication meets comfort. The spacious formal dining room is perfect for hosting dinners, while the eat-in kitchen, equipped with a cooktop, gas oven, microwave, and dishwasher, invites culinary creativity. Indulge in year-round comfort with central AC, complemented by forced air systems ensuring a cozy atmosphere throughout the seasons. The basement offers ample storage or potential for further customization. Set on a 6,836 square-foot lot, enjoy the tranquility of private and off-street parking, including a sizable driveway for convenience. Embrace modern living in a setting that exudes timeless elegance—34 Kings Ferry Road awaits your arrival. Close to Cortlandt Manor Metro North Train Station. Call today!

Hide full description

Important Stuff
Washer/Dryer in unit
Home features
Dishwasher
Hardwood floors
Building amenities
Services and facilities
Parking Available
Building info

History
What it'll cost
Purchase price
$550,000
Asking Price: $550,000
Term
30 Years
Down Payment
$55,000 (10%)
Min: 10% (55,000)
Rate
6.25 %
Mortgage Amount
$495,000
Mortgage Payment
$3,048
Taxes
$760
Estimated Yoreevo rebate
$4,000
Estimated closing cost
$18,000
Total monthly cost $3,808
Buy your dream home with us and get an estimated $4,000 rebate.
Rebates vary by sale price, market and are subject
to a minimum commission.
Listing Courtesy of Compass Greater NY

Information ©2025, OneKey MLS. All rights reserved. The source of the displayed data is either the property owner or public record provided by non-governmental third parties. It is believed to be reliable but not guaranteed.