Sold
Share Listing
Save Listing
297 Pulaski Street
Condo in Stuyvesant Heights •  building info
5bd • 3.5ba • 2,812ft² $709 per ft²
Sold price

$1,995,000

Key Details
Days on market
26
Last price change
loading...
Estimated payment
$11,193/mo
Taxes
$138/mo
Maintenance
N/A
Description
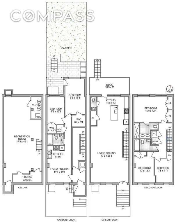
297 Pulaski Street was initially constructed in 1899. Impeccably renovated, this home is the perfect combination of high-end finishes, modern technology, and exquisite original details. This townhouse is a two-family brownstone that features 5 bedrooms, 3 full bathrooms, 1 powder room, an expansive backyard garden, and a large parlor deck. From the beautiful decorative fireplace to the herringbone oak flooring, attention to detail can be found throughout this incredible home. As you enter the owner's three-bedroom triplex, you are greeted by a large, open-concept, 42ft deep living space. On your left, you are immediately drawn to the extra large floor-to-ceiling windows. To your right, the kitchen has been adorned with a formidable quartz island, perfect for long conversations as you break bread with your guests. It is a chef's dream, equipped with a full suite of Berzonni appliances including a six-burner stove, 36' french door refrigerator, and ample storage in the all-white cabinetry. Tucked in between the living room area and the kitchen are the stylish powder room and pantry. Toward the back is a full glass wall with a door leading out to the deck which overlooks the private backyard. Upstairs there are three bedrooms and 2 full bathrooms. The primary bedroom, facing the serene backyard has a double closet. The ens-suite primary bathroom features a double sink and a standing shower. Toward the front of the house are two smaller bedrooms. From the hallway, you can access the secondary full bathroom and the washer/dryer closet. Passed the kitchen, you head downstairs to the finished cellar which can easily be transformed into a playroom, home office, or artist studio. On the garden level, there is interior access to the second apartment which is a two-bedroom, one-bathroom. This unit can serve as an incoming producing apartment or an in-law suite. This home is located close to one of the best pizza restaurants in the neighborhood, Santa Panza, and in close proximity to a variety of coffee shops and lounges including Jade, Skytown, Brooklyn Whiskers, and The Buren. Also, you can enjoy the nearby farmer's market and the newly constructed Jesse Owens Playground. With a convenient commute just a few blocks away from Myrtle Avenue J/M/Z or Kosciuszko Street J, this home is not to be missed.

Hide full description

Important Stuff
Pets allowed
Washer/Dryer in unit
Home features
Central Air
Dishwasher
Hardwood floors
Fireplace

Decorative

Private outdoor space

Terrace

Building amenities
Services and facilities
Fios Available
Laundry in Building
Shared outdoor space
Garden
Building info

History
What it'll cost
Purchase price
$1,995,000
Asking Price: $1,995,000
Term
30 Years
Down Payment
$199,000 (10%)
Min: 10% (199,000)
Rate
6.25 %
Mortgage Amount
$1,795,500
Mortgage Payment
$11,055
Common Charges
$0
Taxes
$138
Estimated closing cost
$72,000
Total monthly cost $11,193
Listing Courtesy of Compass

IDX information is provided exclusively for consumers' personal, noncommercial use and that it may not be used for any purpose other than to identify prospective properties consumers may be interested in purchasing.

This information is not verified for authenticity or accuracy and is not guaranteed and may not reflect all real estate activity in the market. ©2025 REBNY listing service, Inc all rights reserved.

RLS IDX Data display by Yoreevo.