Buy with Yoreevo
$1,129,875
List Price: $1,150,000
Share Listing
Save Listing
24-16 Queens Plaza South #7B
Condo in Hunters Point (109 units) •  building info
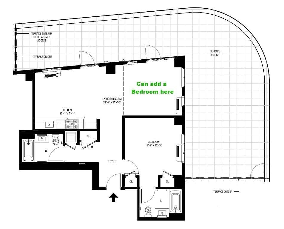
2bd • 2ba • 873ft² • $1,317 per ft²
Buy with Yoreevo

$1,129,875

List Price

$1,150,000

Open Sun, Apr 5 (10am - 6pm) (by appt.)
Key Details
Listed today
Last price change
loading...
Estimated payment
$7,585/mo
Taxes
$442/mo
Common charges
$1,627/mo
Description
Flexible layout with the potential to easily convert into a 2-bedroom. Enjoy 873 sq ft of interior living space and an incredible 951 sq ft private terrace in a luxury condominium building with a 421-a tax abatement. Welcome to Hero 7B, a bright and spacious 1-bedroom, 2-bathroom condo, perfect for outdoor entertaining, gardening, or simply enjoying sweeping city views. The oversized terrace truly sets this home apart. The seller is including a BBQ grill, allowing you to host outdoor gatherings and BBQ parties with friends while enjoying your own private urban oasis. The interior offers a functional open layout, including a modern kitchen that flows into a generous living area, while the primary bedroom provides comfort and privacy. With two full bathrooms, this home is designed for both convenience and style. This residence is easily convertible to a 2-bedroom layout, giving you flexibility to adapt the space to your needs. Adding even more value, the building benefits from a 421a tax abatement through 2034. Located in a prime area with excellent access to nearby subway lines, commuting is effortless, and youre close to the best dining, shopping, and entertainment the city has to offer. Residence 7B combines luxury, flexibility, and outdoor living in one exceptional home.

Hide full description

Important Stuff
Elevator
Washer/Dryer in unit
Full Time Doorman
Home features
Dishwasher
Private outdoor space

Balcony

View

City

Building amenities
Services and facilities
Bike Room
Concierge
Fios Available
Laundry in Building
Live In Super
Package Room
Storage

Cold Storage

Wellness and recreation
Gym
Shared outdoor space
Garden
Patio
Roof Deck
Building info

HERO

24-16 Queens Plaza S, Long Island City, NY 11101

condo in Hunters Point
109
Units
22
Stories
2019
Built

History
What it'll cost
Purchase price
$1,150,000
Asking Price: $1,150,000
Term
30 Years
Down Payment
$230,000 (20%)
Min: 20% (230,000)
Rate
6.0 %
Mortgage Amount
$920,000
Mortgage Payment
$5,516
Common Charges
$1,627
Taxes
$442
Estimated Yoreevo rebate
$20,125
Estimated closing cost
$43,000
Total monthly cost $7,585
Buy your dream home with us and get an estimated $20,125 rebate.
Rebates vary by sale price, market and are subject
to a minimum commission.
Listing Courtesy of Serene Powers

IDX information is provided exclusively for consumers' personal, noncommercial use and that it may not be used for any purpose other than to identify prospective properties consumers may be interested in purchasing.

This information is not verified for authenticity or accuracy and is not guaranteed and may not reflect all real estate activity in the market. ©2026 REBNY listing service, Inc all rights reserved.

RLS IDX Data display by Yoreevo.