Sold
Share Listing
Save Listing
Walnut Road
House in Glen Cove •  building info
5bd • 2.5ba
Sold price

$999,999

Description
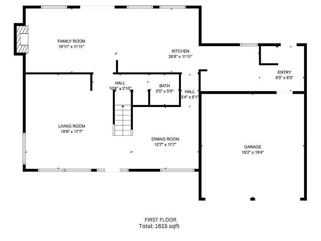
Updated modern single family home in Glen Cove, offering 5 bedrooms, including 2 large bedrooms, and 2.5 bathrooms across 2,249 square feet on a 9,990 square foot lot. Built in 1973, this residence features high ceilings with skylights for lots of natural sunlight. The home features new windows, front door, siding, and roof, all replaced in 2022. The exterior windows include crown molding for added detail. The property also features a pool with a liner replaced in 2024, a hot water heater updated in 2024, and front landscaping already well maintained. The nearly quarter-acre lot provides ample outdoor space for various activities. The interior includes a well-designed floor plan suitable for family living or entertaining. Conveniently located near Glen Cove’s parks, beaches, and downtown area with shops and dining.

Hide full description

Building info

Listing Courtesy of REMI Realty