Share Listing
Save Listing
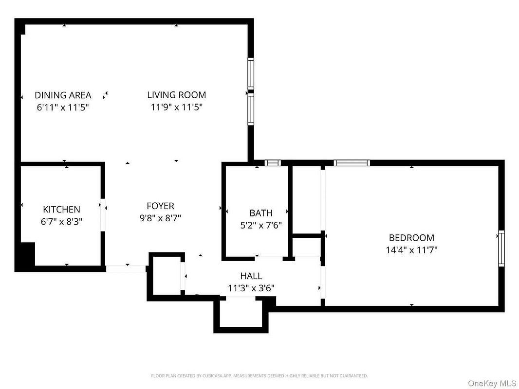
2244 Bronx Park East #5A
Coop in Bronxwood •  building info
1bd • 1ba • 870ft² $259 per ft²
List Price

$225,000

Listing Agent
Gregory Tsougranis  • Keller Williams Realty NYC Grp
Key Details
Days on market
loading...
Last price change
loading...
Estimated payment
$1,800/mo
Taxes
Included in maintenance fees
Maintenance
$721/mo
Description
Tastefully renovated SPONSOR true 1BR on one of the most coveted blocks in the Bronx. Brand new kitchen includes shaker-style hardwood-faced cabinets, quartz countertops with an undermount sink, and a functional fridge. A monochromatic bathroom with timeless subway tiles adds to the minimalist style of the apartment. With generously sized closet space, you will never run out of storage! Panoramic windows allow for plenty of natural sunlight throughout the day. Post-war Reiss Hall building is nestled in a jogger and cyclist-friendly area across the street from Bronx Park and Reiss Field. All nature lovers will appreciate the proximity to the NY Botanical Garden as well as the famous Bronx Zoo. Located just minutes away from a major transportation hub at #2 and #5 White Plains Rd train station, Bx12 cross Bronx bus, and an easy entrance to the Bronx River Pkwy and Pelham Pkwy highways, this charming residence will appeal to those with the highest level of living standard. Make sure to see this beauty before it is gone! Live-in super. HIGH OWNER OCCUPANCY AT 79.34%. The zoned elementary school is P.S. 096 Richard Rodgers; there are three (3) zoned middle-school options (Bronx Green Middle School, Pelham Academy of Academics and Community Engagement, and Bronx Park Middle School); there are no zoned high schools due to the NYCDOE's Citywide High School Choice.

Hide full description

Important Stuff
Elevator
Unit features
Dishwasher
Hardwood floors
Building amenities
Services and facilities
Parking

Garage

Building info

History
What it'll cost
Purchase price
$225,000
Asking Price: $225,000
Term
30 Years
Down Payment
$45,000 (20%)
Min: 20% (45,000)
Rate
6.0 %
Mortgage Amount
$180,000
Mortgage Payment
$1,079
Maintenance
$721
Estimated closing cost
$7,000
Total monthly cost $1,800
Listing Courtesy of Keller Williams Realty NYC Grp

Information ©2026, OneKey MLS. All rights reserved. The source of the displayed data is either the property owner or public record provided by non-governmental third parties. It is believed to be reliable but not guaranteed.