In Contract
Share Listing
Save Listing
200 East 36th Street #11C
Coop in Murray Hill •  building info
1bd • 1ba
List Price

$639,000

Key Details
Days on market
loading...
Last price change
loading...
Estimated payment
$4,496/mo
Taxes
Included in maintenance fees
Maintenance
$1,623/mo
Description
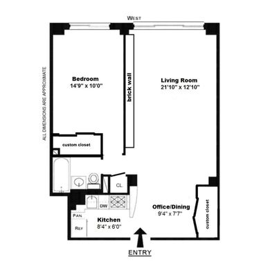
Welcome Home to This Oversized, Turn-Key 1-Bedroom Residence This beautifully renovated, spacious one-bedroom apartment is designed to meet all your needs. As you step inside, youll be greeted by a brand-new, expanded kitchen featuring stainless steel appliances, a stylish backsplash, custom cabinetry, and a convenient breakfast bar. The open floor plan, accentuated by elegant bamboo hardwood flooring, seamlessly blends living and dining areas. A stunning custom stone media wall with recessed lighting serves as the centerpiece of the space, while sophisticated millwork discreetly conceals the heating and air conditioning units. Perched on a higher floor with western exposure, this home offers breathtaking views of Midtown Manhattan. The king-sized bedroom provides ample space for additional furnishings, ensuring comfort and versatility. Five generous closets throughout the apartment offer abundant storage, with extra storage available if needed. The renovated bathroom exudes modern luxury, featuring new stone tiles, a chic vanity, and extra storage within the stylish medicine cabinet. A washer and dryer can also be installed for added convenience. Residents of this full-service, pet-friendly building enjoy premium amenities, including a well-equipped gym, a serene open courtyard garden, and updated laundry facilities with new machines. A dedicated, friendly staff and an on-site resident manager impeccably maintain the building. Conveniently located near Grand Central Terminal just a short distance away, offering access to the 4/5/6, N/R/Q/W, and S subway lines, the M34 bus, Metro-North, and more. Dont miss the opportunity to call this exceptional residence your home!

Hide full description

Important Stuff
Elevator
Full Time Doorman
Cats and Dogs allowed
Policies
Gifts Allowed
Gaurantor Permitted
Co-purchase Allowed
Parents Buying Allowed
Pied-a-Terre Allowed
Unit features
Dishwasher
Hardwood floors
View

City, Skyline

Building amenities
Services and facilities
Bike Room
Fios Available
Laundry in Building
Live In Super
Parking

Garage

Wellness and recreation
Gym
Shared outdoor space
Roof Deck
Building info

History
What it'll cost
Purchase price
$639,000
Asking Price: $639,000
Term
30 Years
Down Payment
$159,000 (25%)
Min: 25% (159,000)
Rate
6.0 %
Mortgage Amount
$479,250
Mortgage Payment
$2,873
Maintenance
$1,623
Estimated closing cost
$7,000
Total monthly cost $4,496
Listing Courtesy of Compass

IDX information is provided exclusively for consumers' personal, noncommercial use and that it may not be used for any purpose other than to identify prospective properties consumers may be interested in purchasing.

This information is not verified for authenticity or accuracy and is not guaranteed and may not reflect all real estate activity in the market. ©2026 REBNY listing service, Inc all rights reserved.

RLS IDX Data display by Yoreevo.