Sold
Share Listing
Save Listing
165 Chrystie Street #7
Condo in Lower East Side •  building info
Sponsor Unit • 2bd • 2ba • 1,607ft² $1,929 per ft²
Sold price

$3,100,000

Key Details
Days on market
211
Last price change
loading...
Estimated payment
$20,815/mo
Taxes
$2,446/mo
Common charges
$1,190/mo
Description
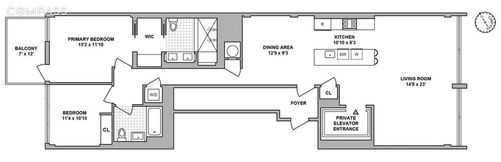
Draft sale description Designed by Architecture Only and built by Nortco and Nexus Development, 165 Chrystie is a striking new boutique 8 unit, 10-story residential building on Manhattan's vibrant Lower East Side. The contemporary reinforced concrete structure directly across from Sara D. Roosevelt Park is a luxury boutique condominium of the highest order, offering spacious full-floor residences, private upscale living, and prized views of the park's lush greenery that are truly rare. Now available for IMMEDIATE OCCUPANCY is this stunning park-facing 2-bedroom, 2 bathroom apartment positioned on the 4th floor, boasting 1,607 sq ft of impeccably-designed interiors. A flexible layout affords the ability to tailor that space to your needs as a convertible 3 bedroom, or a grand 2 bedroom plus home office in the dining alcove. Upon arrival, the keyed elevator opens to a fabulous great room that instantly impresses with its sunny eastern exposure and tranquil park vistas. Generously proportioned for entertaining, this oasis is also marked by airy 9'5' ceilings, a gracious backdrop for living and dining, and sliding floor-to-ceiling multi-paned windows enhancing the ambience by being able to completely open up over the park letting the outside flow in. Meaning to indoor-outdoor space Refinement continues with modern, timeless fit and finish throughout including gorgeous 7'-wide engineered white oak Italian flooring, sleek recessed lighting, a vented washer-dryer, and multi-zone heating and cooling system for year-round comfort. The NYC Cesar Italian-designed vented kitchen is a dream for the cook, appointed with white veined cristallo quartzite countertops and backsplashes, a large island, smoked oak casework, Dornbracht fixtures, and suite of premium Miele integrated appliances (5-burner gas cooktop, speed oven, 36' refrigerator, 24' dishwasher, and Uline wine cooler for favorite vintages). Unwind in your serene well-proportioned primary bedroom suite featuring an 84 sq ft balcony for enjoying the outdoors and a huge walk-through closet for storage. The en-suite spa bath pampers with Bianco Dolomite marble walls and radiant heat floors, a wood-accented double vanity, stone countertops, Robern medicine cabinets, Waterworks fixtures, oversized shower and wall-hung Toto toilet. The 2nd bedroom presents customizable closet space and easy access to the 2nd bathroom, adorned with silver wood grain stone radiant heat flooring, Waterworks fixtures, a deep soaking tub and wall-hung Toto toilet. Among the building amenities is a lobby sitting area, gym/recreation room, shared roof deck for all a owners, cloud-based intercom system, package room, bicycle storage and private storage for purchase. The location is excellent, at the crossroads of SoHo, NoHo, Nolita, The Bowery, Chinatown, and the East Village. Right nearby is Whole Foods, The New Museum, Essex Crossing, trendy restaurants, bars and boutiques, art galleries, and several subway lines (J,Z,F,B,D,R,W,6) for getting around town. THE COMPLETE OFFERING TERMS ARE IN AN OFFERING PLAN AVAILABLE FROM SPONSOR. FILE NO. CD17-0012

Hide full description

Important Stuff
Washer/Dryer in unit
Elevator
Pets allowed
Virtual Doorman
Policies
Smoke-free
Pied-a-Terre Allowed
Home features
Private outdoor space

Balcony

Building amenities
Services and facilities
Bike Room
Fios Available
Package Room
Storage

Locker/Cage

Wheelchair Access
Wellness and recreation
Gym
Shared outdoor space
Roof Deck
Building info

History
What it'll cost
Purchase price
$3,100,000
Asking Price: $3,100,000
Term
30 Years
Down Payment
$310,000 (10%)
Min: 10% (310,000)
Rate
6.25 %
Mortgage Amount
$2,790,000
Mortgage Payment
$17,179
Common Charges
$1,190
Taxes
$2,446
Estimated closing cost
$122,000
Total monthly cost $20,815
Listing Courtesy of Compass

IDX information is provided exclusively for consumers' personal, noncommercial use and that it may not be used for any purpose other than to identify prospective properties consumers may be interested in purchasing.

This information is not verified for authenticity or accuracy and is not guaranteed and may not reflect all real estate activity in the market. ©2025 REBNY listing service, Inc all rights reserved.

RLS IDX Data display by Yoreevo.