Sold
Share Listing
Save Listing
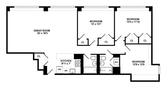
130 West 67th Street #17EF
Coop in Lincoln Square •  building info
2bd • 2ba
Sold price

$1,750,000

Key Details
Day on market
1
Last price change
loading...
Estimated payment
$11,519/mo
Taxes
Included in maintenance fees
Maintenance
$3,438/mo
Description
Discover a rare opportunity to design your dream home at The Toulaine. This unique offering allows for the seamless combination of two units into a spacious 2-bedroom, 2-bath residence, with the flexibility to create a 3-bedroom layout. Enjoy breathtaking panoramic city views through expansive picture windows, and revel in the abundant natural light provided by desirable south and west exposures. The current design boasts a spacious open-concept living and dining area, complemented by a sleek, modern kitchenideal for hosting gatherings. The residence offers generous storage throughout, ensuring plenty of room for all your needs. Situated on the vibrant Upper West Side, The Toulaine is a pet-friendly, full-service co-op, ideally located near Central Park, Lincoln Center, Columbus Circle, and a wide array of restaurants. Residents benefit from 24-hour doorman service, a beautiful roof deck with city views, a serene Zen garden, a bike room, and additional storage. Pied--terres are welcome. Take advantage of this exceptional chance to craft a home uniquely tailored to your lifestyle.

Hide full description

Important Stuff
Washer/Dryer in unit
Elevator
Full Time Doorman
Cats and Dogs allowed
Policies
Sublets Allowed
Gaurantor Permitted
Co-purchase Allowed
Pied-a-Terre Allowed
Unit features
Storage Available
View

City

Building amenities
Services and facilities
Bike Room
Fios Available
Laundry in Building
Live In Super
Storage Space
Shared outdoor space
Courtyard
Roof Deck
Building info

History
Past Listing Photos
1 of 8
thumbnail 1/8
thumbnail 2/8
thumbnail 3/8
thumbnail 4/8
thumbnail 5/8
thumbnail 6/8
thumbnail 7/8
thumbnail 8/8
What it'll cost
Purchase price
$1,750,000
Asking Price: $1,750,000
Term
30 Years
Down Payment
$437,000 (25%)
Min: 25% (437,000)
Rate
6.25 %
Mortgage Amount
$1,312,500
Mortgage Payment
$8,081
Maintenance
$3,438
Estimated closing cost
$25,000
Total monthly cost $11,519
Listing Courtesy of REAL BROKER

IDX information is provided exclusively for consumers' personal, noncommercial use and that it may not be used for any purpose other than to identify prospective properties consumers may be interested in purchasing.

This information is not verified for authenticity or accuracy and is not guaranteed and may not reflect all real estate activity in the market. ©2025 REBNY listing service, Inc all rights reserved.

RLS IDX Data display by Yoreevo.