In Contract
Share Listing
Save Listing
Garth Road
Coop in Scarsdale •  building info
1bd • 1ba
List Price

$385,000

Description
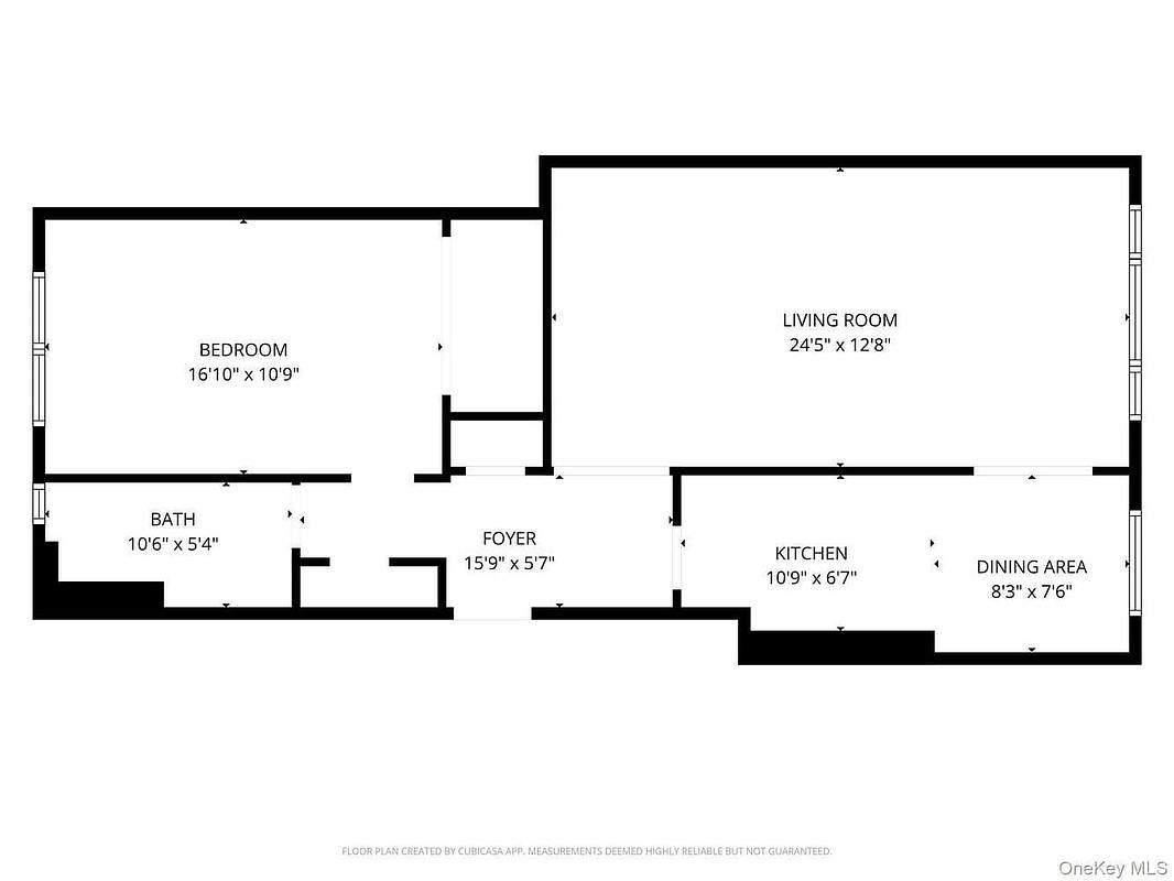
Welcome to Eton Hall, 127 Garth Road unit #5D, a bright and beautifully renovated one-bedroom residence in a prime Garth Road location. The largest one-bedroom layout available, this unit features a brand-new kitchen with white shaker cabinetry, quartz countertops, stainless steel appliances, and a contemporary mosaic tile backsplash. The kitchen opens to a generous dining area and an incredibly spacious living room, highlighting the beautifully refinished hardwood floors. The oversized bedroom provides plenty of room for a king sized bed and a grand walk-in closet. The bathroom has been tastefully renovated with modern tile, a re-glazed tub, new vanity and light fixtures. Freshly painted walls throughout, new lighting, and classic prewar details complete the home's clean, polished feel. Located in a well-maintained elevator building just moments from Garth Road shops, restaurants, and the Scarsdale Metro-North train station, offering a convenient commute to New York City. The renovation includes a one-year warranty on workmanship, providing added peace of mind. A wonderful opportunity to own a thoughtfully updated home in one of Westchester's most desirable locations.

Hide full description

Building info

Listing Courtesy of Keller Williams Realty Group