In Contract
Share Listing
Save Listing
103A Patchen Avenue
Townhouse in Stuyvesant Heights •  building info
5bd • 4ba • 2,025ft² $556 per ft²
List Price

$1,125,000

Key Details
Days on market
175
Last price change
loading...
Estimated payment
$6,803/mo
Taxes
$569/mo
Maintenance
N/A
Description
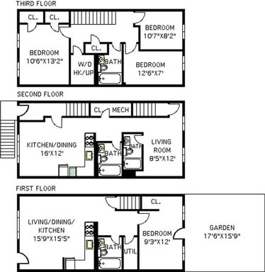
103A Patchen Ave. is the perfect trifecta of versatility, opportunity, and affordability for an end-user, investor, or both! Delivered vacant, this property allows for immediate occupancy or renovation without the hassle of tenant relocation. Currently configured as a two-family home consisting of a one-bedroom with a private backyard and a four-bedroom, three-bathroom duplex, the property offers flexible use as a three-story single-family residence or can be easily restored to its original layout: a two-bedroom, two-bathroom duplex and a three-bedroom, two-bathroom duplex. In total, the property features five bedrooms and four full bathrooms. Originally, the first apartment was a two-bedroom, two-bathroom duplex with a primary ensuite bedroom located upstairs. The upper apartment was configured as a three-bedroom, two-bathroom duplex. A washer/dryer hook-up is available in the walk-in closet on the third floor. Each of the two existing units has its own private entrance, generously-sized living and bedroom areas, and open kitchens with full-sized stainless steel appliances. Both units are equipped with central heating and cooling systems. Enter the upper apartment from the parlor floor, which includes the living room, a kitchen with an adjacent bathroom, and another bedroom with an ensuite bathroom. The top floor offers three additional bedrooms and a full bathroom. The stairwell between the first and second floors is currently closed off but can be reopened to connect the levels. Located on a quiet residential block in Stuyvesant Heights, 103A Patchen Ave. is just around the corner from P.O. Reinaldo Salgado Playground and community garden. Passionfruit Coffee shop is only a block away, Blink Fitness is two blocks away, and the J & Z subway lines are a short three-block stroll. Bed-Stuy continues to be a prime area for investment and long-term value, with a vibrant community and strong potential for property appreciation. This home is priced to sell and will not last!

Hide full description

Home features
Central Air
Hardwood floors
Private outdoor space

Private Garden

Building amenities
Services and facilities
Fios Available
Building info

History
What it'll cost
Purchase price
$1,125,000
Asking Price: $1,125,000
Term
30 Years
Down Payment
$112,000 (10%)
Min: 10% (112,000)
Rate
6.25 %
Mortgage Amount
$1,012,500
Mortgage Payment
$6,234
Taxes
$569
Estimated closing cost
$42,000
Total monthly cost $6,803
Listing Courtesy of Compass

IDX information is provided exclusively for consumers' personal, noncommercial use and that it may not be used for any purpose other than to identify prospective properties consumers may be interested in purchasing.

This information is not verified for authenticity or accuracy and is not guaranteed and may not reflect all real estate activity in the market. ©2025 REBNY listing service, Inc all rights reserved.

RLS IDX Data display by Yoreevo.