Buy with Yoreevo
$2,063,250
List Price: $2,100,000
Share Listing
Save Listing
100-15 34th Avenue
Apartment in North Corona •  building info
studio • 4,000ft² $525 per ft²
Buy with Yoreevo

$2,063,250

List Price

$2,100,000

Key Details
Days on market
181
Last price change
loading...
Estimated payment
$11,637/mo
Taxes
N/A
Maintenance
N/A
Description
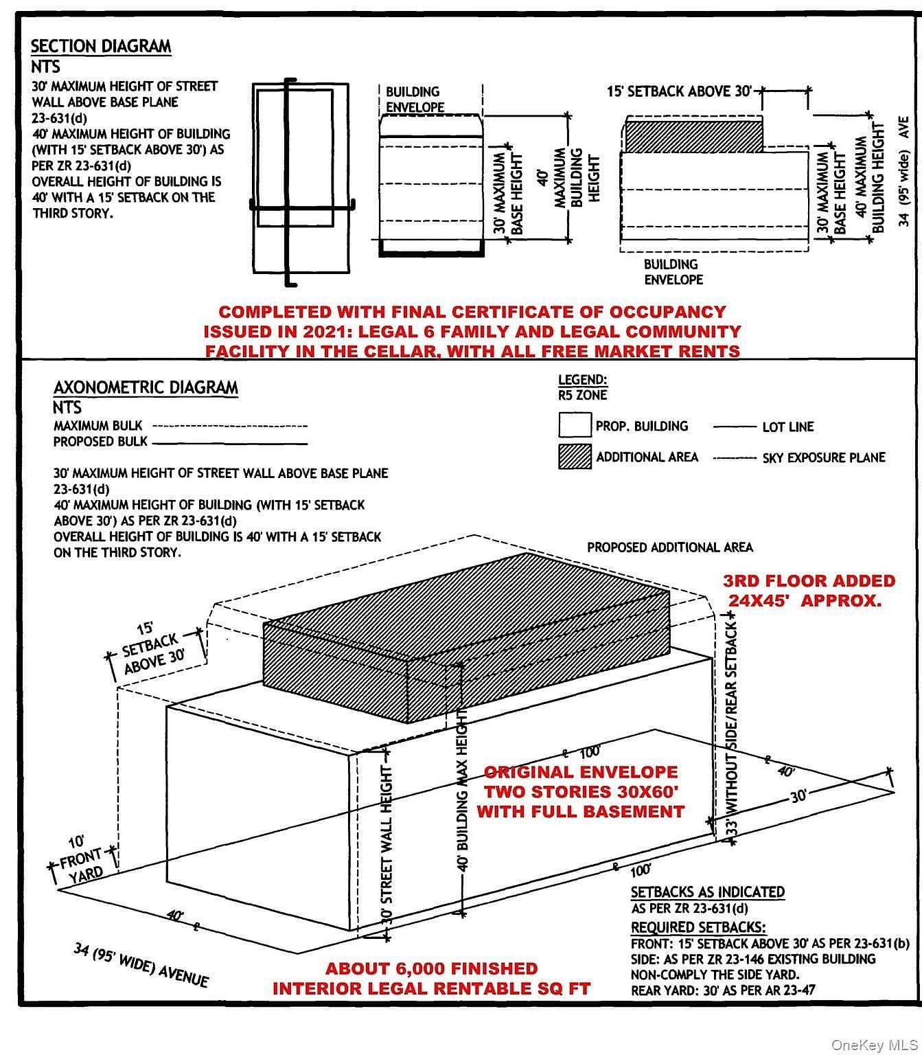
Fully Rebuilt and Renovated in 2021, this solid brick multifamily with community facility and with all market rents (no rent control, no rent stabilization)is located in convenient Corona, close to the no. 7 train, and right on 34th Ave. The property is a Legal 6 family plus Community facility with Three vacancies currently provided. All tenants pay their own heat and utilities. Situated in up an coming area that shows a high concentration of new development, the proximity to the Willets Point Site with all its amenities and features will add to its intrinsic value. The building is in close proximity to all modes of transportation, expressways, subway, express buses, La Guardia Airport, shopping, schools, parks, restaurants and entertainment. It is also in an area with a very healthy rental market. The original 1926 building was gutted out, rebuilt and expanded in 2021 when the new certificate of occupancy was obtained. Currently it features 6 residential units and a legal Community Facility in the Basement, currently rented to a non profit organization). The first floor features two large 1 Bedroom apartments (1L and 1R), featuring their own gas fired circulating hot water heating systems, in unit washer driers, new kitchens and bathrooms, each with access to their private backyard. These two units are large and could be easily converted to Junior 4 Two Bedrooms. Unit 1L is vacant. On the second floor there are two units currently used as two Jr4 two bedrooms, 2L and 2R (with living room and kitchen combos), similar heating and features than the first floor units and with rear facing balconies. Unit 2R is currently vacant. The third floor unit features two smaller one bedroom units with large south facing terraces and similar heating and features than the other 4 units. Unit 3R is currently vacant. There is a private driveway and an attached 1 car garage. As a building substantially rebuilt, it is not rent regulated (no rent control and no rent stabilization). The expenses, available on request, are low and for example, just the real estate taxes are covered by the Community Facility current rent. For comparison purposes and to illustrate the uniqueness of this opportunity it offers a better return than owning two 3 family homes together, being easier to manage and with lower expenses. With approximately 6,000 sq ft of interior renovated space, and with All legal income this property offers an opportunity to the Investor of vision and a chance to those who want to build Generational Wealth or those seeking a qualified property for a 1031 like-kind Exchange. Special financing available to qualified investors. Shown by appointment only.

Hide full description

Important Stuff
Washer/Dryer in unit
Home features
Hardwood floors
Private outdoor space

Balcony, Roof Deck, Terrace

Building amenities
Services and facilities
Fios Available
Parking

Garage

Shared outdoor space
Roof Deck
Building info

History
What it'll cost
Purchase price
$2,100,000
Asking Price: $2,100,000
Term
30 Years
Down Payment
$210,000 (10%)
Min: 10% (210,000)
Rate
6.25 %
Mortgage Amount
$1,890,000
Mortgage Payment
$11,637
Estimated Yoreevo rebate
$36,750
Estimated closing cost
$34,000
Total monthly cost $11,637
Buy your dream home with us and get an estimated $36,750 rebate.
Rebates vary by sale price, market and are subject
to a minimum commission.
Listing Courtesy of Xzeller Realty

Information ©2025, OneKey MLS. All rights reserved. The source of the displayed data is either the property owner or public record provided by non-governmental third parties. It is believed to be reliable but not guaranteed.