
The Penelope
61-05 39th Ave, Flushing, NY 11377
Condo in Woodside

| Unit | Price | Beds | Baths | Ft² |
|---|---|---|---|---|
| 61-09 39th Avenue | 1bd | 1ba | 706 ft² | |
| 6105 39th Avenue #D6 | 1bd | 1ba | 745 ft² | |
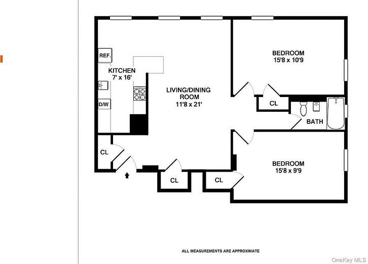
| 6105 39th Avenue #M5 | 2bd | 1ba | 970 ft² | |
| 61-09 39th Avenue #M2 | 2bd | 1ba | 970 ft² |
Information ©2026, OneKey MLS. All rights reserved. The source of the displayed data is either the property owner or public record provided by non-governmental third parties. It is believed to be reliable but not guaranteed. This information is not verified for authenticity or accuracy and is not guaranteed and may not reflect all real estate activity in the market. ©2026 REBNY listing service, Inc all rights reserved. IDX information is provided exclusively for consumers' personal, noncommercial use and that it may not be used for any purpose other than to identify prospective properties consumers may be interested in purchasing. RLS IDX Data display by Yoreevo.