
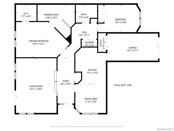
104 Lakebridge Dr N, Kings Park, NY 11754
Condo in Kings Park

| Unit | Price | Beds | Baths | Ft² |
|---|---|---|---|---|
| 104 Lakebridge Drive N | 2bd | 2ba | 1,690 ft² |
Information ©2026, OneKey MLS. All rights reserved. The source of the displayed data is either the property owner or public record provided by non-governmental third parties. It is believed to be reliable but not guaranteed.